© 2025 CB Architetti - All rights reserved
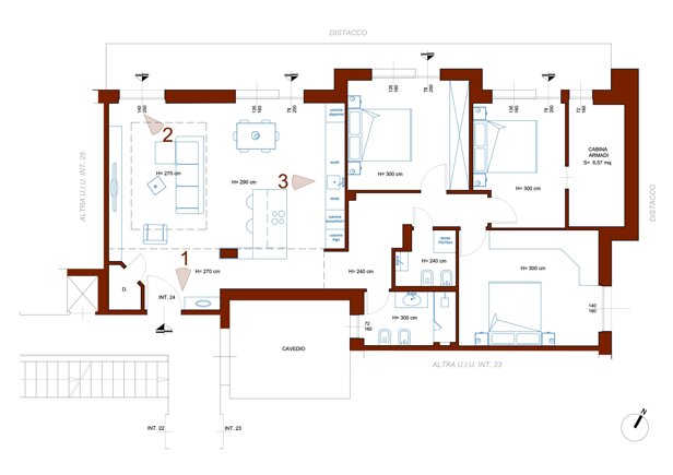
Rendering fotorealistici della soluzione progettuale e planimetria arredata con coni ottici di riferimento · Residenziale · 105 mq · Genova, borzoli




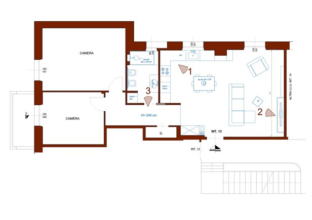
Rendering fotorealistici della soluzione progettuale e planimetria arredata con coni ottici di riferimento · Residenziale · 80 mq · Genova, marassi






Progetto di ristrutturazione e rinnovo degli ambienti bagno · Residenziale · Genova, albaro
Bagno principale: un ambiente completo, progettato per unire comfort e raffinatezza. Caratterizzato da una spaziosa vasca da bagno e da un'atmosfera luminosa, il bagno presenta rivestimenti in gres ceramico lucido di grande formato (60x120 cm per le pareti, 60x60 cm per il pavimento), che amplificano la sensazione di ampiezza e modernità. I sanitari compatti a filo muro, in elegante bianco opaco, si integrano armoniosamente con il design essenziale. Il mobile sospeso, con lavabo integrato nel top, è accompagnato da uno specchio retroilluminato a LED che garantisce una luce uniforme e accogliente Completano il progetto rubinetterie e accessori cromatici, insieme a termoarredi di design in tonalità vivaci, in dialogo con l'arredo, per un tocco di personalità.
Bagno di servizio: un ambiente funzionale e di carattere, progettato con attenzione al design e alla praticità. La spaziosa doccia da 80×120 cm è incorniciata da rivestimenti in gres ceramico effetto travertino opaco (60x120 cm per le pareti, 60x60 cm per il pavimento), creando un'atmosfera naturale e sofisticata. Il piatto doccia in resina, coordinato al pavimento, garantisce una continuità visiva impeccabile. La monocromia delle superfici si arricchisce con dettagli di forte impatto, come arredi, rubinetterie e accessori in nero opaco. Il vaso wc a filo muro, in ceramica bianca opaca, è accompagnato da un idroscopino in metallo nero, mentre il mobile sospeso, con lavabo integrato, completa l'insieme con uno stile minimal e funzionale. Un termoarredo di design nero opaco aggiunge il tocco finale, dialogando armoniosamente con il resto dell'ambiente.
> A seguire alcune fotografie di dettaglio e il confronto pre-post i lavori di ristrutturazione:
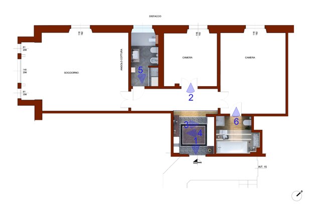
Rendering fotorealistici della soluzione progettuale e planimetria arredata con coni ottici di riferimento · Residenziale · 120 mq · Genova, marassi





Progetto di Interior Design: eleganza e funzionalità in ogni Dettaglio · Residenziale · Genova, pegli
Ingresso: è stato ripensato in chiave moderna, con un design raffinato che combina luminosità e contrasti materici. I mobili, progettati e realizzati su misura in bianco, amplificano la luce naturale e sono impreziositi da un elemento decorativo in legno scuro che interrompe l’armadiatura in modo equilibrato, richiamando dettagli presenti sia a sinistra che a destra dello spazio.
Un ampio specchio, incorniciato in una tonalità tortora, dialoga armoniosamente con la parete frontale, caratterizzata da eleganti strisce verticali tono su tono che conferiscono uniformità all’ambiente. La porta del servizio igienico è stata progettata a filo muro, dipinta nello stesso motivo della parete, per integrarsi senza interrompere la continuità visiva. Infine, un quadro di grande impatto, illuminato ad arte, sarà collocato sulla parete frontale, completando l’ingresso con un tocco di personalità.
Bagno principale: è stato progettato per unire eleganza e praticità. Il piatto doccia in pietra (80x150 cm) si integra perfettamente con le piastrelle in gres grigio che rivestono il pavimento, creando un effetto di continuità cromatica. Le pareti sono impreziosite da piastrelle in gres effetto legno (30x90 cm), mentre la parete dei sanitari presenta lo stesso materiale in versione a rilievo, aggiungendo movimento e profondità all’ambiente. La zona doccia è caratterizzata da piastrelle di grande formato (60x120 cm) in tonalità bianco tenue, arricchite da delicati motivi floreali grigi, che donano un tocco raffinato e leggero. Il mobile con lavabo a vaschetta e gli altri arredi si inseriscono armoniosamente nel contesto, completando il design. Appena entrati, è stato ricavato un funzionale spazio lavanderia, nascosto da un’anta su misura, che ospita un piccolo lavatoio e una soluzione compatta con lavatrice e asciugatrice impilate, per ottimizzare gli spazi senza rinunciare allo stile.
Bagno di servizio: nella camera da letto matrimoniale è stato annesso un bagno privato, originariamente accessibile dall’ingresso, trasformandolo in uno spazio esclusivo e dedicato al relax. Il design è stato concepito per offrire un’esperienza di relax e comfort, trasformando il bagno in un ambiente intimo e accogliente.
L’elemento centrale è una vasca idromassaggio, accessibile tramite tre scalini rivestiti in gres grigio chiaro e illuminati con strisce LED, per creare un’atmosfera intima e accogliente. Il bagno è completo di sanitari, installati grazie a un sistema sanitrit, e di un piccolo lavandino con mobile coordinato, perfettamente integrato nel contesto.
La pavimentazione in legno di bambù aggiunge calore e naturalezza, in armonia con le superfici in gres di grande formato (60x120 cm) che rivestono le pareti, arricchite da un raffinato motivo floreale per un effetto rilassante e sofisticato.
L'illuminazione, studiata nei minimi dettagli, combina faretti a LED e strisce luminose suddivise in diverse modalità, permettendo di alternare una luce diffusa e avvolgente a punti luce più intensi, ideali per creare un’atmosfera rilassante e personalizzata. Accanto alla vasca è stata ricavata una nicchia decorativa, arricchita da sassi bianchi, che aggiunge un tocco di eleganza naturale e contribuisce a valorizzare l’ambiente come spazio dedicato al benessere.
> A seguire alcune fotografie di dettaglio, rendering della soluzione progettuale, il confronto pre-post i lavori di ristrutturazione e il confronto tra il rendering fotorealistico della soluzione progettuale e a lavori ultimati :







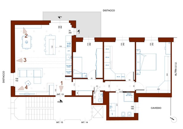
Rendering fotorealistici della soluzione progettuale e planimetria arredata con coni ottici di riferimento · Residenziale · 95 mq · Genova, san martino





Progettazione dehor per Bar "O Buteghin in ciasetta" · Commerciale · 15,45 mq · Genova, centro storico

© 2025 CB Architetti - All rights reserved